Skylight Detailing

Skylights façade system facilitate the utilization of natural day lighting in the building interiors instead of artificial lighting. It adds to the aesthetic appeal of the building. Advenser provides services for 2D detailing, shop/fabrication drawings including floor/key plans, elevations, and sections for skylight façade systems. We continue to follow the same standards for all projects from a particular client for subsequent projects in order to ensure quality and consistency in our drawings. We guarantee you the most cost effective façade drafting & detailing services with a quick turnaround time. We are experts in producing façade 2D drafting and detailing and 3D modeling services using sophisticated tools.

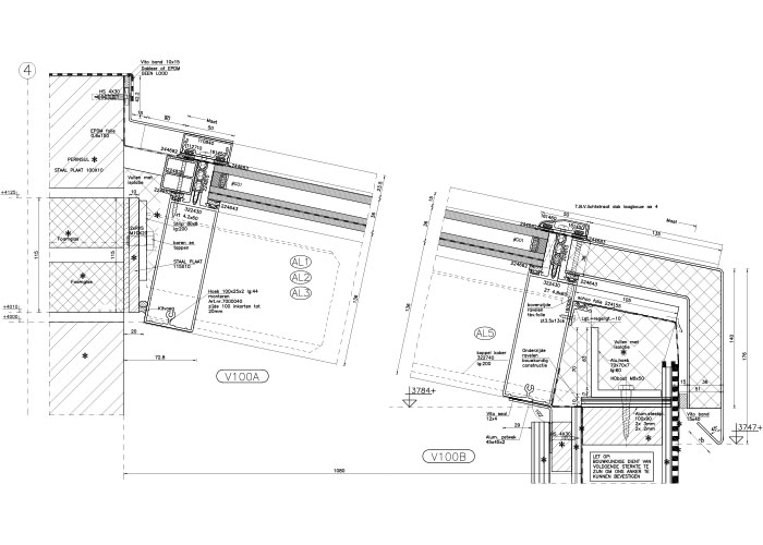
Skylights Drafting & Detailing Services
Skylights Drafting & Detailing Services

Skylight provides a building with both day lighting and ventilation. Once properly selected and installed, an energy-efficient skylight can help minimize various external aspects like heating, cooling, and lighting costs. Skylight glazing is usually glass, although other glazing technologies may be used for solar heat control. Based on the performance expectation from a skylight, we may opt for different types of skylight glazing for different skylight locations throughout the building. The most commonly seen skylight glazing shapes include rectangular, circular, oval, diamond, triangular, multi-sided, and tubular. Skylights are most commonly made from glass and polycarbonate material due to its transparency. Our services include skylight fabrication drawings for glass.

We utilise mainly SCHUCO, GUTMANN, GULF EXTRUSION, JANSEN ECONOMY, JANISOL, VISS, ALCOA, PRESTO systems, which enables the most innovative and intrinsic façade concepts to be implemented with an impressive finishing and also promotes green building technology. All these systems offers a variety of profile systems and versions. They allow energy efficiency and sustainability. Due to the simplicity and durability of these facade systems, they are commonly used in construction. Spider glazing is a high-grade stainless steel fixings which are designed for absorbing the static and dynamic loads of the building (including the dead weight of the glass and other external factors like wind load, snow load, temperature variation) and spread the load uniformly across the support structure.

Copyright © 2026 | www.curtainwallfacadedetailing.com